Недвижимость Дома, дачи, коттеджи / Дом 86 м² на участке 20 сот.
Обзор№ - 244182
| Стоимость | 3 200 000 |
|---|---|
| Площадь, кв.м. | 86 |
| Площадь участка, сот | 20 |
| Этажность | 1 |
| Материал стен | Кирпич |
Адрес
| Страна | Россия |
|---|
В избранное Недвижимость Дома, дачи, коттеджи / Дом 86 м² на участке 20 сот.
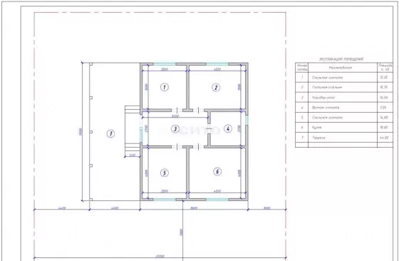
Подробнее об объекте на СИТО.рус - Лот № 244182 ДОМ ГАЗИФИЦИРОВАН. ЕВРОРЕМОНТ. ДОМ ПО ЦЕНЕ ОДНОКОМНАТНОЙ КВАРТИРЫ ПЛЮС ЗЕМЛЯ.Продам дом в ближайшем пригороде г. Анапы поселок Адагум, участок 20 соток, фасад участка 21 метр.В доме 3 комнаты 14 кв.м,12 кв.м.,17 кв.м.,, плюс кухня 18 кв. м., холл 14 кв. м., ванная комната 8 кв. м. Дом в улице, много новых домов, много строятся. До Анапы черное море 35 км,до Азовского моря 30 км, до Крымского моста 115 км. Все коммуникации газ, свет, вода холодная сетевая плюс скважина.Отопление автономное, аллюминивые радиаторы, расчеты и монтаж отоления по СНИП. Горячая вода котел 2х контурный плюс эл. бойлер.Дом сдан в эксплуатацию в 2019 году, дом в собственности, земля в собственности. Дом сделан керамзитобетонные блоки обшит сайдингом утеплитель пенофлекс пятерка , внутри стены гипсокартон, утеплитель 50 мм, затраты на отопление зимой минимальные. Молодой сад. Ремонт ламинат, кафель, ванна в кафеле,заходи живи. Дорога асфальт. Планировка на фото, мансарда 40 кв м. Все формы оплаты, ипотека, мат. капитал, военная ипотека. Прописка, домовая книга чистая, школа, детей в школу возит туда и обратно школьный автобус, магазины, поликлиника ,детский сад, места в садике свободно. Заходи и живи.Жду в гости, просмотр в любое время, можем привезти на место. Так же есть два дома на этапе строительства, один точно такой же-близнец первого,газ свет вода все в доме, идут отделочные работы, другой 102 кв,цена намного ниже, все в собственности любая форма оплаты,земля тоже в собственности.По этим двум домам можно рассмотреть варианты рассрочки. Нужны фото вышлю.Высылайте свой вацап. Документы к продаже готовы. Хозяин.Собственник.










































