Продам землю 5.0 сот город Новороссийск Центральный район
Обзор№ - 243897
| Стоимость | 1 150 000 |
|---|---|
| Площадь участка, сот | 5 |
Адрес
| Страна | Россия |
|---|
В избранное Продам землю 5.0 сот город Новороссийск Центральный район
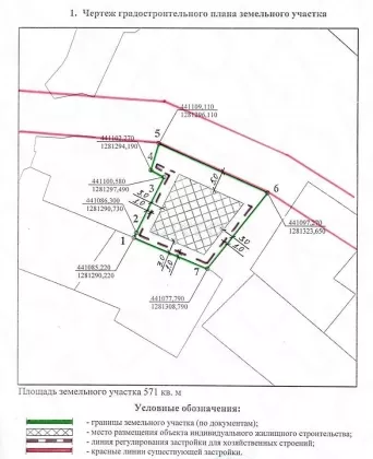
Подробнее об объекте на СИТО.рус - Лот № 243897 Продается земельный участок ИЖС, район ул. Осоавиахима (переулок Дачный). Вся прелесть загородной жизни в 5-ти минутной близости от центра города. Участок 2-х уровневый, тупиковый, огорожен забором, расположен в жилом районе, подъезд к участку частично забетонирован. Уже получено разрешение на строительство, договор на подключение с НЭСК на 15 квт. Район активно газифицируется. На участке: хозпостройка под снос, забетонированный бассейн, скважина, растет инжир, кизил, алыча, фундук. С участка открывается прекрасный вид на бухту. До центра города 5 минут на машине, минуя все загруженные трассы, до пляжа Широкая балка 10 минут. Остановка транспорта в шаговой доступности. Кадастровый номер 23:47:0303060:340 Собственник. Посредников, просьба, не беспокоить.


